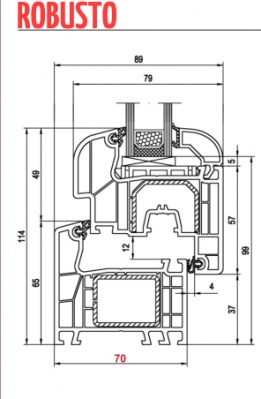
Profil Robusto - Ideal 4000

2_12Protectie termica rama

Uf = 1.3 W/m²K

Protectie termica sticla

Ug = 0.6 W/m²K

Protectie fonica

maxim 43 dB

Etansare la apa

Clasa 9A

DIN EN 12208

Permeabilitatea la aer

Clasa 4

DIN EN 12207

Rezistenta la vant

Clasa C5

DIN EN 12210

Grosime maxima sticla

40 mm

Pachet de sticla recomandat:

4 mm Dual Protect -14 mm argon - 6 mm lowe - 12 mm argon - 4 mm float (Ug = 0.6 W/m²K)

Factori luminozitate si Factori energetici:

Transmitanta 58% Transmitanta 31%

Reflexia externa 28% Reflexia externa 43%

Reflexia interna 25% Reflexia interna 37%

Factor solar g 0.37

Coeficient de umbrire 0.42